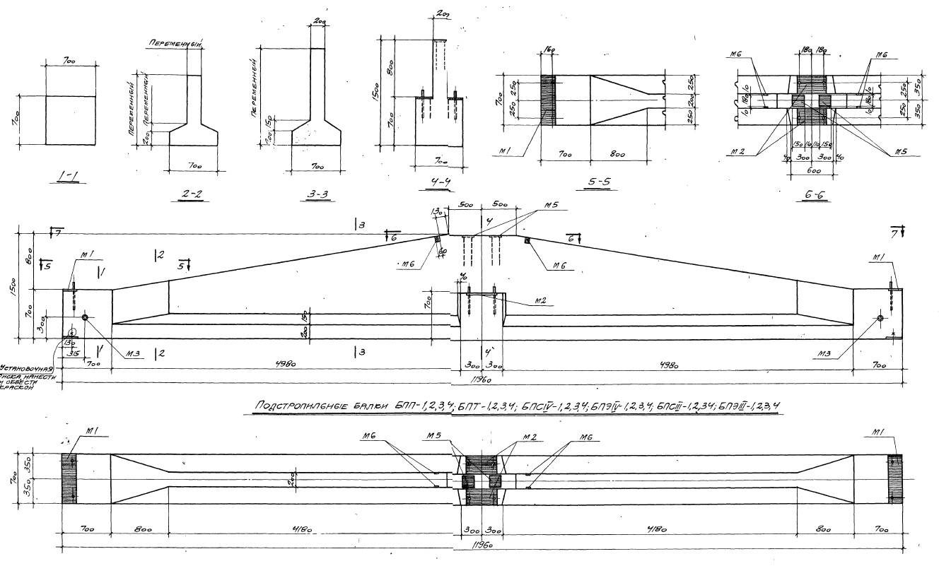
Балка подстропильная БПТ 4 к предназначена для использования в строительстве крыш и перекрытий. Изготовлена из железобетона, что обеспечивает высокую прочность и долговечность конструкции. Балка имеет специальное пазообразное соединение для удобства монтажа и обеспечения надежности крепления. БПТ 4 к идеально подходит для создания каркаса крыши или перекрытия, обеспечивая необходимую жесткость и надежность всей конструкции.
Балка подстропильная БПТ 4 к широко используется в строительстве жилых, коммерческих и промышленных зданий. Она применяется для создания каркаса крыши, обеспечивая необходимую поддержку и жесткость всей конструкции. БПТ 4 к также может использоваться для устройства перекрытий между этажами, обеспечивая надежную опору для полов и создавая прочную основу для дальнейшего строительства. Благодаря высокой прочности и долговечности, балка подстропильная БПТ 4 к является надежным элементом конструкции здания, который обеспечивает его устойчивость и долговечность.









