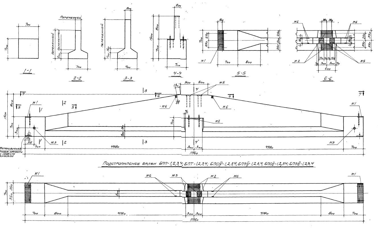
Балка подстропильная БПС IV-4 к предназначена для использования в строительстве крыш и перекрытий. Изготовлена из железобетона, что обеспечивает высокую прочность и долговечность конструкции. Балка имеет специальное пазообразное соединение для удобства монтажа и обеспечивает надежную фиксацию при сборке каркаса.
Балка подстропильная БПС IV-4 к применяется в строительстве жилых, коммерческих и промышленных зданий для создания каркаса крыши или перекрытия. Идеально подходит для строительства мансардных этажей, а также для устройства чердаков и технических помещений. Обеспечивает надежную поддержку кровельного материала и равномерное распределение нагрузок по всей конструкции.









