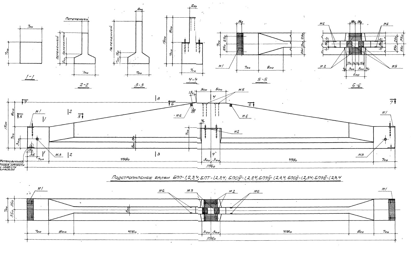
Балка подстропильная БПС IV-3 к представляет собой железобетонный элемент, который используется для укрепления стропильной системы кровли. Она обладает высокой прочностью и устойчивостью к воздействию внешних нагрузок, что делает ее незаменимым элементом при строительстве кровли.
Балка подстропильная БПС IV-3 к применяется в строительстве жилых, коммерческих и промышленных зданий для укрепления стропильной системы и обеспечения надежной поддержки кровли. Она идеально подходит для использования в условиях повышенной влажности и агрессивной среды, так как обладает высокой стойкостью к коррозии и воздействию внешних факторов. Балка подстропильная БПС IV-3 к обеспечивает долговечность и надежность конструкции кровли, что делает ее популярным выбором среди строителей и дизайнеров.









