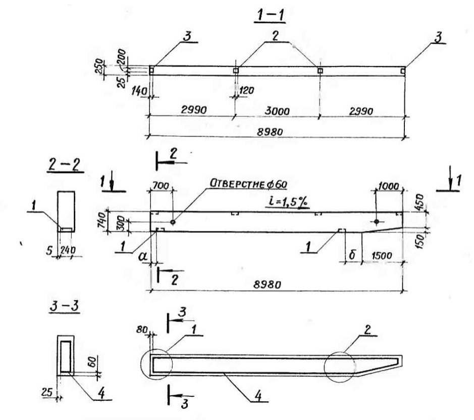
Балка навеса 2БН 6-2 представляет собой железобетонное изделие, предназначенное для использования в строительстве навесов и навесных конструкций. Она имеет прочную железобетонную конструкцию, которая обеспечивает надежность и долговечность изделия. Балка навеса 2БН 6-2 отличается высокой степенью устойчивости к воздействию внешних нагрузок и атмосферных условий, что делает ее идеальным выбором для создания крытых пространств.
Балка навеса 2БН 6-2 широко используется в строительстве для создания навесов над автомобильными стоянками, террасами, беседками, а также для обустройства крытых площадок и других навесных конструкций. Это изделие идеально подходит для защиты от осадков и солнечных лучей, обеспечивая комфортное пребывание на открытом воздухе в любое время года. Балка навеса 2БН 6-2 обладает привлекательным внешним видом и легко вписывается в любой архитектурный стиль, делая ее популярным выбором среди дизайнеров и строителей.









